Schulungs- und Seminarräume in Zug
Unsere grosszügigen, professionell ausgestatteten Räume befinden sich an bester Lage, direkt bei Bahnhof, Einkaufszonen und Restaurants. Zu einem günstigen Preis bieten wir Ihnen alles, was Sie für Ihre Seminare, Ihre Sitzungen oder Schulungen benötigen: | ||||||
| ||||||
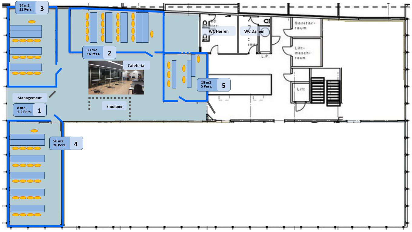
Schulungs- und Seminarräume (Layout anschauen): 4 klimatisierte Räume für ca. 8 bis 20 Personen (siehe Fotos) Kosten pro 1/2 Tag und Raum: CHF 320.00 Kosten pro Tag (8.00 bis 17.00 Uhr) und Raum: CHF 540.00 inklusive: Beamer (HDMI) und Visualizer (WolfVision VZ-9) Flipchart mit Papier und Schreibzeug Pinnwand Toilettenbenützung | ||||||
Pausen Für Kurzpausen stehen in der gemütlichen Cafeteria eine leistungsfähige Nespresso-Kaffeemaschine, Snacks und ein Getränkekühlschrank zur Verfügung. Bezahlung mit TWINT oder Bargeld. GET Kaderschule Baarerstrasse 23 (Erlenhof, 1. OG) 6300 Zug | ||||||
| ||||||
Gerne stellen wir Ihnen unsere Räume zur Verfügung und heissen Sie herzlich willkommen. |








